建築士のBarbara Appolloniによるバルセロナのこのカフェを訪れた人は上階とテラスに向かうコンクリートの階段で足を止めます。

Federal Caféという名前のプロジェクトはインテリアを街頭に広げ、格納式の鉄のシャッターを1階に取り付け、黒セラミックタイルのベンチをつけ、境界線を示しています。

写真撮影:Lucía Carretero。
Appolloniからの詳細な情報は以下の通りです:
FEDERAL CAFÉ
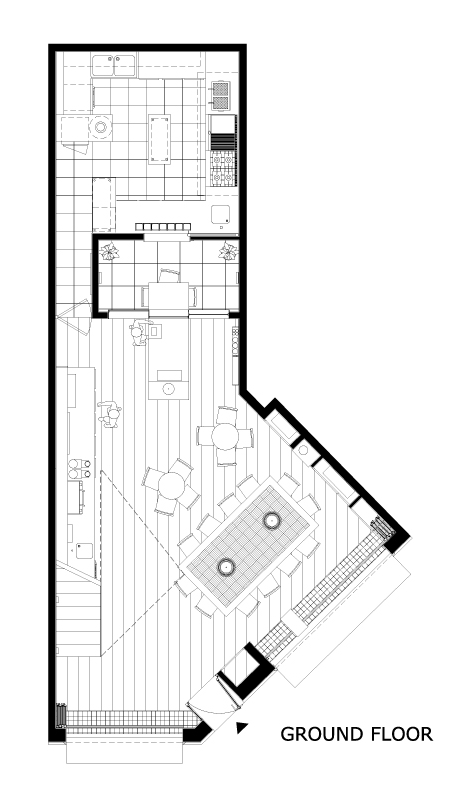
バルセロナ、サン・アントニオ近郊の街角にある、既存の2階建て建物とテラスについて、依頼者は居心地が良く、堅苦しくないカフェやビストロやランチの場所となるレストランだという説明でした。

正面側は、近隣の建物と同じように保ち、最小限度の再建をした一方、家屋の木造部にはデザインを施したため、一階は格納式のスチールの窓と、上階にある既存の木窓の広がりにより街並みとの視覚的な広がりが続くようになりました。
一階には、10×10 セラミックタイルでコーティングされた作業台があり、屋内外スペースの境界線を示しています。また座って街並みを眺める快適な場所でもあります。

内部スペースには完全に手を加えて、詳細に渡って改新されています。
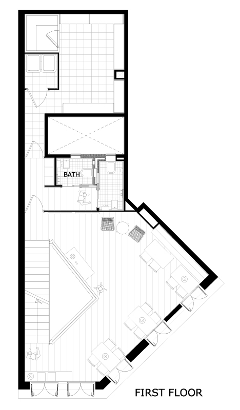
この場所に入って目を引くのは天井が倍の高さによる上階と、この場所で作られたコンクリートの階段です、それから再び上に上っていくとガーデンテラスがあります。
一階において、視界は小さな中庭にまで広がります。ここが公共の場所と店舗の敷地の区切りとなっており、スペースをオープンにするアイディアを提供し、双方の風通しを良くしています。
元来、壁に対面していた一階はバーになります。この場所はデザートテーブルのような注文設計で、スライド式の窓の中心と中庭の対称軸に計画的に位置しています。どちらの素材もベニヤ板を様々な色のプラスチックラミネートでコーティングされているものです。
立地:バルセロナCarrer Parlament 39
建築士:Barbara Appolloni
依頼人:Nigel Chouri, Christopher King
企画:Comprehensive Rehabilitation
西暦:2009年ー2010年
使用:Café-Bistro
階:2階、テラス
総面積:150平方メートル+60平方メートル、テラス
写真撮影:Lucía Carretero



See also:
こちらもご覧ください:
.
![]() |
![]() |
![]() |
| Rosa's by Gundry & Ducker |
Yellow Submarine by Tulp Design |
Barrio North by Anarchitect |
翻訳/NPO法人ハートフルジャパン 小川美紀
Dezeen記事(オリジナル)はこちら。




コメントする