
フランスのブロック・アーキテクツが、フランスのナントに、家、公共施設、学校を包含したひとつのブロックを完成した。

Bottière Chenaieと呼ばれるこのコンクリートの建物は、波形をした色付きストライプで垂直方向に装飾されている。

デザインでは、ここをかつて占有していた野菜栽培産業から、ヒントを得ている。

都市近郊の発展を促進するため、多目的施設がその近くに一緒に建てられた。

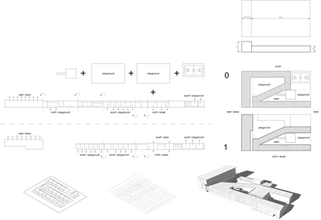
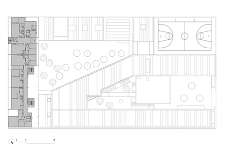
プロジェクトは最高5階建て、長方形ブロックの敷地内に位置する。

ブロック・アーキテクツからの更なる情報はこちら。
-
このプロジェクトは、フランスのナント市北東にある古くに栄えた場所で、都市計画の一環として設置されました。

景観を改良することで、プロジェクトでは強いアイデンティティを提案しています。

プロジェクトでは建築デザインによって、かつてこの地で栄えた野菜栽培産業に関連付けた「美」を復活することが提唱されました。

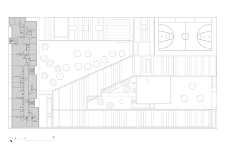
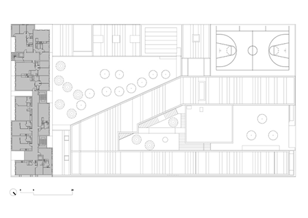
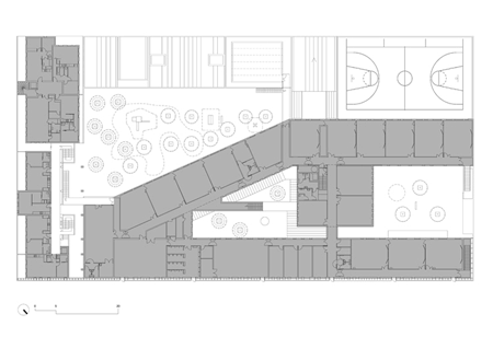
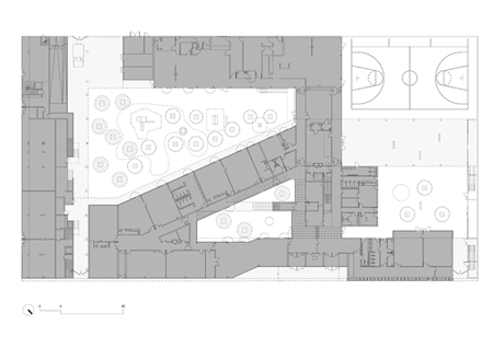
都市ブロックはコンパクトな5階建てで、居住空間、公共施設、学校からなっています。

計画はすべてブロックの形状内におさめられ、住居は外方向に間隔をあけています。

異なる部分同士を適応させて、プロジェクト内の複雑性が統合されています。

コンクリート構造は、路上における配列の形状と、そこに存在する都市構造を現しています。

野菜生産業という過去を反響させる透明な外皮により、このレイヤーは色付きのファサードに息吹を与え、プロジェクトの垂直性の表現を増長させています。

この原則はプロジェクト全体に提案されています。それゆえに、書面にすると、教育、居住、活動といった多目的ビルディングの単体ブロックということになります。

プロジェクトは、そのインパクトはもちろんのこと、都市近郊での品質の高いプログラムを象徴的に見せています。

景観と共鳴した「建築-合図(信号)」の惜しみないイメージからなっています。

作者 :
プリンシパル・アーキテクツ: ブロック・アーキテクツ
アソシエート・アーキテクツ:Guinée Potin アーキテクツ
コラボレーター: Solen Nico, Celine Monvoisin, Benoit Moreira
エンジニア: Iosis, Itac, Gotec
学校: ナント市(フランス)
住居と公共施設 : Harmonie Habitat (フランス)











-
投稿/ナターシャ・リヨンズ
翻訳/ハートフル・ジャパン 武田浩美
Dezeen記事(オリジナル)はこちら。

コメントする