
カナダのデザインスタジオThe Marc Boutin Architectural Collaborativeが、カナダ、インバーミアにある丘の上に建設した木箱のような住宅は、景色が額縁に収められたように見えるデザインが特徴だ。

Frame Houseと呼ばれるこの建物は正面がガラス張りになっていて、森やさらに遠くの山々が望める。

巨大な建物の中にあるもう一つの「箱」が家族専用の部屋で、外からは見えないようになっている。

写真:ブルース・エドワード

スタジオからの詳細は以下の通り。
5人の若い家族のためにデザインされたこの住宅は、景色を満喫できる立地条件下に建てられています。この住宅は単なる生活空間ではなく、自然環境に対する感性を高める、言わば周囲の美しい風景を捉えるレンズの役目も果たすのです。

同時にこの住宅は、自然通風、パッシブ・ソーラー(動力を使わない太陽光発電)、地熱利用、さらに太陽光給湯などの持続可能な建築デザインを取り入れています。その結果、事実上電力ゼロ供給の住宅が完成し、名実ともに敷地に与える環境面での負荷を最小限に抑えています。

この住宅を間近で見ると、周囲の景観と調和した建物の外観によって、敷地を囲む山や常緑樹が一層引き立ちます。

建物自体は、山々を望む優れた視界と、この住宅に内在する公私を明確にした空間的構造の両者を追求する「枠」としての機能を果たします。これは主として建物の正面と裏側の外壁処理により実現されます。

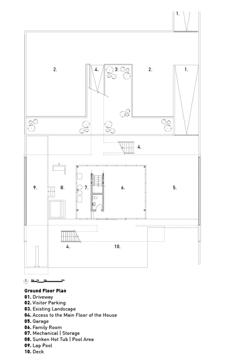
一階間取り(図面上)
01.私道
02.来客用駐車場
03.既存の敷地
04.二階用階段
05.ガレージ
06.家族部屋
07.機械室
08.温水浴槽・プール施設
09.ラッププール
10.テラス
建物の北西側には、落ち着いた不透明ガラスを使用しています。こちら側に表玄関を取り付けることで、視界が一旦遮られ、室内に入ってから見渡せる山々の景色を一層魅力あるものにします。周囲の山々や景観と調和した娯楽施設に面している南東側は可動式のガラス張りで、建物と景観が一体となります。

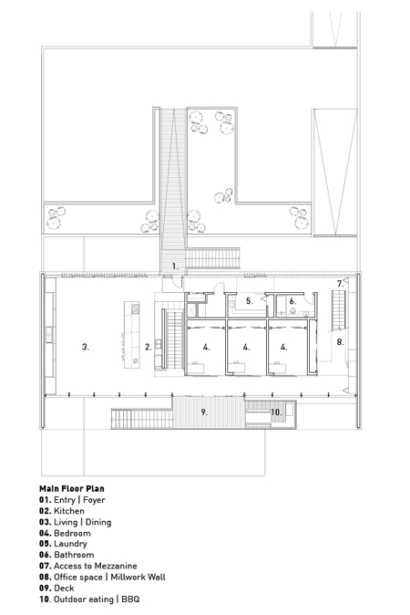
ニ階間取り
01.玄関
02.キッチン
03.リビング
04.寝室
05.洗濯室
06.浴室
07.中二階用階段
08.オフィス・作業場
09.テラス
10.バーベキュー施設
広さが限られた基平面に組み込まれ、(建物の屋根によって)風雨から守られる特徴的なテラスに立つと、室内の落ち着いた雰囲気とは異なり季節の移り変わりを直接肌で感じることができます。同時に、景観と調和した壁は、宙に浮いたような家の素朴な外観を美しく見せる上で欠かせないものになっています。

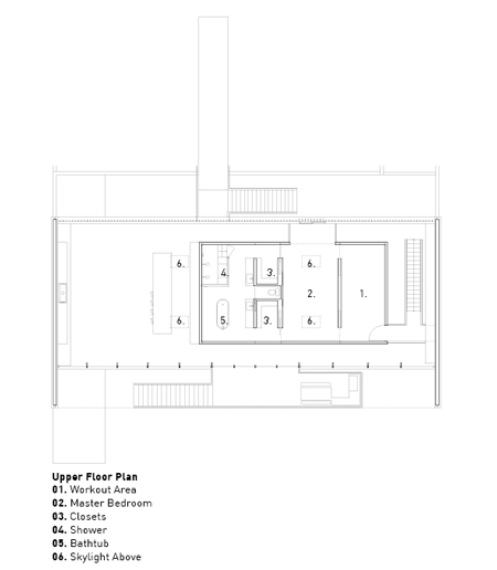
中二階間取り
01.トレーニングルーム
02.主寝室
03.クロゼット
04.シャワー
05.浴槽
06.明り取り
この建物の中には、周到に設計された「箱」、すなわち家族のための空間があります。「家の中にあるもう一つの家」とも言えるこの「箱」からも山々の景色を楽しむことができますが、「箱」を出て眺める景色を魅力的なものにするために、視界を抑えてあります。

イラスト上:更地
イラスト中:地ならし
イラスト下:新しい基平面上に建てられた住宅は、額に入れたような景色が目立つ構 造になっています。
この「箱」の中心となる二階には、子供用の寝室が三か所と、他に生活に必要な洗面所、洗濯室、倉庫などのスペースがあります。主寝室とそれに隣接する浴室は、中二階にあります。住宅自体の外観的構造は、二階建ての公共性が強い建築で、その中に人が集う娯楽施設があります。

この住宅の正面には、18フィートの可動式ガラスドアが取り付けられ、外のテラス、プール、温泉施設、さらに山々の景色を見渡せます。この建築の意図は、各階が循環する構造にあり、その過程で心に残る風景の断片が、山々や美しい景色を微妙に変える「額縁」としての機能を果たすのです。

会社概要
The Marc Boutin Architectural Collaborative inc.は、地道な研究をベースに、顧客本位の精力的な活動を続けるデザインスタジオで、1997以来カルガリーでデザインを提供してきました。様々な分野を取り込んだデザインの開拓に力を注ぎ、美術、建築、都市デザイン、産業デザイン、景観設計の各分野を総合体として捉えることで初めて実現行可能な、価値のあるデザインと企業の環境責任を追及しています。その結果生まれたデザインの数々は、建築や公共施設のデザインを中心に国内外で多くの賞を獲得し、国際舞台で発表及び展示されてきました。近年手がけた仕事としては、カルガリー市中心部にあるオークレアプラザの再開発、市の中心部における多数の一世帯住宅建設、一連の公共広場建設による市内を流れる河川敷遊歩道整備、さらに由緒あるCalgary Public Buildingの復元などが挙げられます。
投稿/クリス・バーンズ
翻訳/ハートフル・ジャパン 鳴海 亨
Dezeen記事(オリジナル)はこちら。

コメントする