
「陶器市場」と名付けられたこのプロジェクトでは、両側をビルで囲まれた敷地内に中庭や橋で結ばれた建物が6棟建設され、一枚の透明な屋根で覆われる。

目的は、300年前にこの通りで開かれていた由緒ある陶器市を再現することで、依頼主の住宅も敷地内に建てられる予定だ。

河田剛氏の建築に関する記事は、Dezeen: Usuki House (February 2010)を参照。
建築家からの情報は以下の通り。
このプロジェクトは都市活性化の一環として、かつて大阪のこの地で栄えていた陶器市を再現するものです。陶器市通りは今から300年前の江戸時代に賑わいを見せた地域で、数年前に陶器市が開かれましたが、現在はその面影がありません。今回のプロジェクトは、地域の活性化と商店街の賑わいを取り戻すことを目的としています。

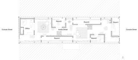
敷地自体は狭く、南北両側は高層ビルに挟まれています。敷地内は、骨とう品や有田焼、備前焼、京焼などの陶芸家による作品の展示スペース、さらに所有者の住宅が収容できるよう設計されています。同時に、買い物客が大昔に開かれた市の雰囲気を楽しめる場所にもなります。建物は中庭を挟んだ6つのスペースで構成されています。
拡大画像はこちら。
外観は6つのスペースが敷地内に切り貼りされたような形で、天井と壁はガラスで覆われています。内部は、高層ビルの狭間という立地条件から思い浮かぶ印象とは異なり開放的で、訪れる人に神秘的な雰囲気を感じさせます。また、建物の中を行き来することで、過去と現在が織りなす独特な雰囲気を体感できます。陶器通りの復元計画が今始まろうとしています。
投稿/クリス・バーンズ
翻訳/ハートフル・ジャパン 鳴海 亨
Dezeen記事(オリジナル)はこちら。



コメントする