
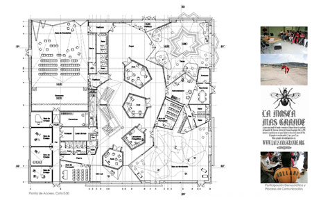
リヴァス・グスマンにあるニュー・ユース・センターと名付けられた、この作品は一階建てで、内部が切り子細工の様に切り取られて、鮮やかな色が特徴だ。

コーナーに星の形を持つこの部屋は、建物の中でのアクティビティーの爆発を象徴している。

このテーマは建物の外まで続いており、外壁は、鮮やかな紫色とオレンジ色で覆われて、手すりも星形をしている。

撮影: ミゲル・デ・グスマン

以下は、Mi5からのコメントの抜粋
-
ラヴィス・ヴァシアマドリッドのニュー・ユース・センター
プロジェクトの当初から、ニュー・ユース・センターはアンダーグラウンドの可能性を示す建築として期待され、マドリッド郊外のラヴィスに住む青少年の精神を映し出す建築でした。


そうすることで、今回のプロジェクトはラヴィスの若者達を受け入れ、将来の利用者である彼らの関心事や、意見、美的センスまでもをプロジェクトに取り入れて、技術者や政治家とともに、新たな現代の社会的モニュメントを想像出来るのです。

このプロジェクトは、最終的にはパンクの精神をもった公共建築となって、様々なプログラムを提供するアクティビティーの爆発のセンターとなって、ミーティングの場となったり、地域のコミュニティーの場として役割を果たしている。










コメントする