


内装の建材には主として木材が使われ、屋内の階段はカーブを描き、来客用の寝室は床から天井まで木材が広く使用されている。

以下は建築家からの説明である。
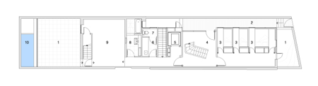
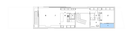
Tivoli Road houseは個人の住宅で、様々な家が建ち並ぶ市の中心部の通りに面した一角という珍しい敷地内に建てられている。

この地区にある住宅景観を完成させるのに相応しい外観や建材を取り入れました。

通りに面した敷地の一角に建築されるため、人目や騒音から住宅を守り、居住者に安心感を与える構造が要求されます。


青石は耐久性にすぐれ、劣化しにくい建材で、それを地元で調達することによってコストの削減につながりました。

ダイヤモンドを組み込んだ様々な厚さや幅の青石パネルを独自の工法で張り合わせた荒削りな模様が躍動感あふれる外壁を創造し、簡素で建材の特性を最大限に追求したこの住宅を一層魅力的なものにしています。

広範囲にわたり使用された青石とは対照的に、内装には依頼主の「木」に対する想いが込められ、外装の青石をと内装の木材がバランスを生み出します。


建物に囲まれた明るい中庭によって敷地全体に日が差し込み、建物の外側にある庭は周囲の景観に溶け込みながら、同時にプライバシーを確保し、外界との接点を保ちます。

長さ6メートルの可動式窓によって、居間は町の景色を堪能できる広いテラスに生まれ変わり、市内中心部の狭い敷地とは別世界の快適な空間を創造します。










投稿/ローズ・エサリントン
翻訳/ハートフル・ジャパン 鳴海 亨
Dezeen記事(オリジナル)はこちら。


コメントする