
ファイアラックスというこのプロジェクトでは、既存の階段を白いメタル仕様に替えている。

壁の鏡と円形開口部から、家の他の部分を覗き見ることができる。

写真:Bepictures

以下、ラベル・アーキテクチャーから:
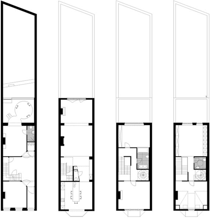
プロジェクトは270平米の民家の改装です。ブリュッセルの伝統的家屋の核心部に、的確な介入をすることで、この住居に際立った特徴を与えています。

各階の透明性、反射、そして連続性によって、ここに住む大家族の日々のルーティンが決定されます。階段の吹き抜けは一階から3階の高さまでまったくさえぎるものがありません。

透かし細工されたメタルの階段によって、一階の二つの部分が連結しています。各階では、部屋を分断する壁の全高さにガラス窓が注意深く取りつけられ、めまいにも似たリアルな感じを与えています。

一部に小さな丸い開口部があり、住人が別の階と会話できます。


窓ガラスの後側はプラットフォームであり移行空間であって、黒で染色された配向性{はいこうせい}ストランドボードで覆われ、反対側の開口部から眺める人にとってはミラー効果を作り出しています。

開口部前方では、ブラインド付きの壁に鏡が備え付けてあります。家族はこの思いもかけない配置が作り出す、まるでルイス・キャロルの世界のような予想外の連続性の恩恵にあやかります。
翻訳者/ハートフル・ジャパン 武田浩美
Dezeen記事(オリジナル)は、こちら。



コメントする