
ノルウェーの ベルゲン建築学校の学生たちが、モザンビークの村で砂袋、瓶、草を使った校舎を建てた。

校舎は、閉じられたコンピュータ・ルームと、藁のドアがついた英語レッスン用の多目的教室からなり、大きなスライド式の扉で仕切られている。

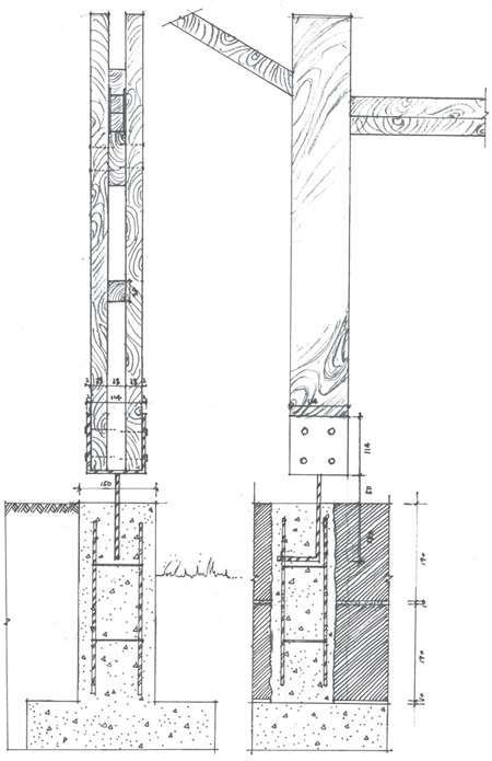
増強コンクリートのフレームに砂袋とガラス瓶が詰めたものが、一体化して壁となっている。

波型の鉄屋根が、通気性の高い木製フレームにサポートされている。

以下、学生たちからのメッセージ。
19人の建築科生徒が、南アフリカで5週間、12日間で学校を作る
異国文化の中で建築家になる
ベルゲン建築学校の修士課程の一環として提供される「異国文化の中で建築家になる」は、建築アプローチで社会的、かつ地域的な意識を強調するプログラムです。学生は周囲の影響や状況を調査分析し、また建築家の役割についても話し合います。2009年秋、何かを建てるという意図もなしに、19人の生徒がモザンビークへと旅立ちました。

チマンド
チマンドの小さなひなびた村にある、恵まれない子供たちのためのシスター・カタリナ・デイケア・センターに着いたとき、私たちは非常に強い衝撃を受けました。NGOであるAid Global(エイド・グローバル)の援助により、カタリナは大人を教育するための訓練センターも運営し、それをデイケア・センターの経費を払うのに当てていました。しかし、リースが切れたことでデイケア・センターの存続が脅かされていたのです。

2週間かけてこの場所のロジックを登録し理解した後で、午後は訓練センターとして、日中は子供たちが利用できる多目的使用校舎を、カタリナの敷地内に建てることで我々は同意しました。12日しかない中で、我々はすぐにプロジェクトを開始しなければなりませんでした。

建物
構造体は単純で、建物はコンピュータ学習用に閉じられた部屋と英語学習用の開かれた部屋からなります。しっかりとした壁を持ち完全に閉めることができるコンピュータルームは、盗難にも安心です。オープン・ルームは外とつながり、高い天井と光を通す壁が、空間的な広がりを感じさせます。

補強されたコンクリートの骨組みが、閉じた部屋に永久的構造を作り出しています。この骨組みによって、詰め物としてはより安価で暫定的な素材を使うことができます。屋根の延長部分が夏には太陽光を遮り、東側と北側のファサードには、冬は温熱材としての機能を持つ砂袋を実験的に使ってみました。

日影のある南側のファサードには、光を通し埃を中に入れないためにガラス瓶が使われています。瓶は美的な質感を与え、高価なガラス窓に代わる良き代替品となっています。

屋根は雨水を貯水槽に集めます。波型の鉄板で出来ていて、低コストの手製の藁の束の上に載っています。わらの束は室内を冷やすための自然の通気孔を作り出し、地元で安く調達した藁のマットで作った室内屋根が、熱風を外に出してくれます。

オープンな部屋は軽い藁の扉がついており、空間をフレキシブルに使うことができます。南は校庭に向かって、北は小さなマンゴの木に向かって、部屋を完全に開けることができます。

二つの部屋は内部で大きなスライディング・ドア一枚で仕切られているので、仕切って、あるいはひとつの部屋として使うことができます。

私たちは手ごろな経済的フレームワークの中で収めたいと考え、現地の方法に新しい解釈を加えて、出来る限り地元の材料を使う努力をしました。全構造をその場で実演しながら組み立てていくため、チマンドの人々が簡単に理解でき、自分たちで実行することもできます。校舎そのものが、教育的なのです。

場所: モザンビークのチマンド
プロジェクト・チーム(学生): Gøran Johansen, Stine Bjar, Silje Klepsvik, Larisa Sarajlija , Olafia Zoëga, Birgitte Haug, Tord Knapstad, Kristian Endresen, Anette M. Basso, Mathias Wijnen, Dan Paul Stavaru, Naeem Searle, Siri Nicholaisen, Maria Flores Adamsen, Monica Xiao, Irmelin Rose Fisch Wågen, Tale Marie Haaheim, Ina Bakka Sem-Olsen, Eirik Solheim Aakhus
プロジェクト・チーム(教授陣): Andrè Fontes, Sixten Rahlff
Project team Organizer: Bror Hansen
クライアント: Sister Catarina
予算: 45000 NOK (8500 $)
期間: 2009年9月ー10月
スポンサー: ベルゲン建築学校
写真: Ina Bakka Sem-Olsen, Tord Knapstad, Stine Bjar, Olafia Zoëga, Sixten Rahlff, Bror Hansen
翻訳者/ ハートフル・ジャパン 武田浩美
Dezeen記事(オリジナル)は、こちら。


コメントする