
ドイツのデザインスタジオTulp Designがミュンヘンに設計した社員食堂は、水中で食事をとっているような雰囲気が味わえる。

「イエロー・サブマリン」と呼ばれる社員食堂の内装は、広告代理店Webguerillasより依頼されたものである。

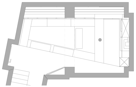
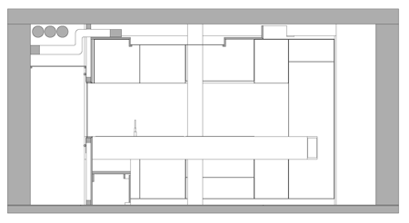
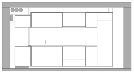
黄色に染められたトウヒ材と、背後から照らされたトルコ石のガラスパネルが特徴的だ。

以下はデザイナーからの説明である。
社員食堂「イエロー・サブマリン」
TULP DESIGNは、ミュンヘンにある広告代理店Webguerillasの地下に、なんと潜水艦を沈めたのです。

黄色に染められたトウヒ材と、背後から照らされた半透明のガラス窓を室内全体に配置することで、狭くて薄暗い地下の一室が、海底にいるような雰囲気の社員食堂に生まれ変わります。

完成:2010年
デザイン:TULP DESIGN GmbH(ドイツ、ミュンヘン)
依頼主: Webguerillas GmbH(ドイツ、ミュンヘン)
投稿/ローズ・エサリントン
翻訳/ハートフル・ジャパン 鳴海 亨
Dezeen記事(オリジナル)はこちら。





こちらの記事もご覧ください。
.
![]() |
![]() |
![]() |
| MS café by Wunderteam |
Design Bar by Jonas Wagell |
More interiors stories |




コメントする