
隣接する住宅が一新され、カフェ、宿泊スペースおよび今週オープンするギャラリーを併設する。

この住宅の後ろに新しく増築された3階建ての2階部分は吹き抜けになっており、基本的にアーチストが活用できるように空っぽの状態になっている。

庭の後ろは新しいスタジオが第二次世界大戦で壊された講堂跡に配置されている。

クロア・エデュケーション・スタジオは大きな天窓と一連の回転ドアが特徴的である。

6A アーキテクツより:
サウス・ロンドン・ギャラリー、6A アーキテクツ、2006〜2010年
6A アーキテクツによって設計されたサウス・ロンドン・ギャラリーの増築がちょうど終ったところです。新しいギャラリースペース、カフェ、住居スペースにアーチストが宿泊できる部屋、そして新しい教育施設を併設しています。

元々の天窓付きギャラリーはロンドンでもっとも洗練されたアートスペースのひとつです。

この特徴ある建物は長い間アーチストに影響を与え、(Ryan Gander,、Steve McQueen、Eva Rothschild、ごく最近ではMichael Landyといった)英国現代アーチストを紹介することで当ギャラリーの世界的な評判を確立する重要な役割を担ってきました。また前述のアーチストと並んでChris Burden、Alfredo Jaarといった国際的な著名アーチストの地位を築いてきました。

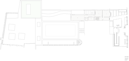
ギャラリーの増築は拡張された敷地の周りに分散された3つの介入から成り立っています。

最初に隣接する67番地の空家が修復され、1階にカフェ、2階に展示スペース、3階にアーチスト・イン・レジデンスのための宿泊スペースが設けられています。

新しい空間は既存の前後の部屋の間取りに従っていますが、建築的表現は時間とともに消えて行くようなイメージに抽象化、軽減されています。

住宅の背後の3層にわたる増築部分はギャラリーに連結する2層分の高さをもつ空間が設けられ、新しいフォックス・ガーデンとクロア・エデュケーション・スタジオに沿って建っています。

敷地後方に第二次世界対戦で破壊された講堂跡に新しい教育用施設を設計しました。

2枚の残存した壁によってフォックス・ガーデンを片側に、もう片方にはギャラリーの庭をつなげるような建物の配置が自然に決まりました。

.既存の建物によって確立された建築的慣習を保ちながらクロア・スタジオは中央の角灯が上部に乗った広々としたシンプルなボリュームを持ち、静けさと暖かさを作り出す剥き出しの屋根構造の住宅からテーマをうまく展開しています。
クリックしてイメージ拡大
サウス・ロンドン・ギャラリーでは、空間全体のシンプルさにはびっくりするようなことが隠れています。西側の壁は裏庭と内部の間の連続する面を開くように旋回します。
クリックしてイメージ拡大
夜に鳴ると壁とシャッターは建物全体を閉め切って抽象的な暗色の箱となります。
クリックしてイメージ拡大
施主:サウス・ロンドン・ギャラリー
www.southlondongallery.org
クリックしてイメージ拡大
コンサルタント
構造設計:Jane Wernick Associates M&E engineer: Serge Lai Engineers Ltd
積算: Stockdale
主な施工会社:John Perkins Projects
クリックしてイメージ拡大
See also:
![]() |
![]() |
![]() |
| Raven Row by 6a Architects |
Key projects by Peter Zumthor |
More architecture stories |










コメントする