





ホルガード・アーキテクツからの詳細は以下の通りである。
コペンハーゲン・ハーバーの工場を改装した集合住宅A-House



かつて工場だったこの建物には、現代の建築には見られない特色や歴史が刻まれています。A-Houseが目指すのは、この古い建物の特色をそのまま生かしながら、新しく近代的な集合住宅に改装することでした。

従来の住宅が持つイメージを覆す近代的な内装に、鋳造のコンクリートや床、さらに御影石を使用することで、魅力あふれるアパートが完成しました。外から見る建物の全景には、かつての工場の面影が全くありません。

古くなった建物の正面は、ブロンズのアルミ製窓枠に取り付けられた新しい透明なガラスに全て置き換えられ、新しい集合住宅に生まれ変わりました。


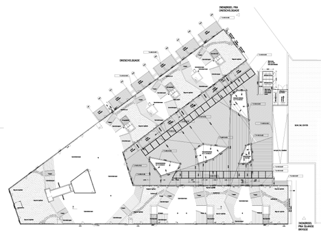
200戸の住宅と10戸の店舗が軒を並べるこの建築は、さながら小さな「町」を連想させます。



13か所ある外の階段の踊り場からは、コペンハーゲンの町並みや港など素晴らしい景色が堪能できます。
このプロジェクトでは、いろいろなタイプのアパートを提供することが重視されてきました。
大きい画像はここをクリック
同一規格の居住空間から成る集合住宅ではなく、居住者の様々な要望に十分対応できるタイプの部屋を提供するのがA-Houseの目的なのです。
大きい画像はここをクリック
様々な家族構成や年齢層の要求に応えられ、同時に居住者の屋内外における生活を充実したものにする住宅環境こそが、この建築の目的なのです。
大きい画像はここをクリック
投稿/ローズ・エサリントン
翻訳/ハートフル・ジャパン 鳴海 亨
Dezeen記事(オリジナル)はこちら。
See also:こちらの記事もご覧ください。
.
![]() |
![]() |
![]() |
| Cherokee by Pugh + Scarpa |
Docks Dombasles by Hamonic + Masson |
More architecture stories |








コメントする