
ラッシラ・ヒルヴィランミ建築設計事務所のフィンランド人建築家 アンシ・ラッシラ氏、テーム・ヒルヴィランミ氏とLuontiのヤニ・ヤンソン氏は、離れた場所に尖塔を有するスレートで覆われた教会をフィンランド・ユヴァスキュラ市に完成させた。

「クオッカラ教会」と呼ばれるこの教会プロジェクトは、ラミネート加工が施された木構造。内装はトウヒ・アッシュウッド・ライムウッドを用いて仕上げた。


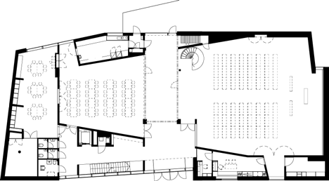
主要階は、ユースセンター・事務所・オルガンや音楽監督者のための事務所を設けた桟敷から見渡すことのできるメインホールで構成されている。

建築家からのさらなる情報は以下のとおり。
「クオッカラ教会」
ユヴァスキュラ教会区の人々のたっての願いは「教会らしい教会」の建設でした。



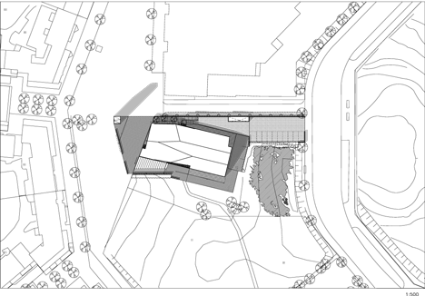
東西融合志向の建物は、ユヴァスキュラ市クオッカラ地区の中心であるクオッカラ広場の中央に建っています。


教会真横に位置する御影石の階段と壁は広場にそびえ立つ鐘楼とともに、訪問者を正面入口の方へ誘います。


主要階には教会ホールと信者のための会議室との共有スペースがあり、子供たちと若者のための施設と隣り合っています。

桟敷にはオルガンと指揮者用の事務所を設けました。

教会の大部分には木が用いられています。


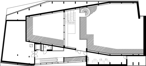
格子シェルを3つのセクションに分けて、現場にて組み立て・ラミネート加工を施しました。


教会ホールの備品にはアッシュウッドが、祭壇にはライムウッドが用いられています。元来、ライムウッドは木製の偶像を彫るために使用されてきました。

教会は市場広場に隣接しており、御影石でできた幅広の階段が訪問者を正面入口へと誘います。

3階建ての建物の1階には、2つの会議室・ユースセンター・事務所が設けられ、オルガンと音楽監督用の事務所がある桟敷から見渡せる構造。

教会はトウヒ材の格子構造で仕上げられたグルーラムの骨組みで支えられています。内部には、ライムウッド製の祭壇とアッシュウッド製の備品が設置されています。
上をクリックすると拡大イメージ
上をクリックすると拡大イメージ
上をクリックすると拡大イメージ
上をクリックすると拡大イメージ
上をクリックすると拡大イメージ
上をクリックすると拡大イメージ
上をクリックすると拡大イメージ
上をクリックすると拡大イメージ
教会デザインは、2006年の招待建築コンペで優勝した作品に基づいています。
デザイン期間:2006-2010
建築:2008-2010
床面積:1311m2, 7460m3
投稿 / ジョー・ミルズ
翻訳 / ハートフル・ジャパン 福田美和
Dezeen記事(オリジナル)はこちら
See also
こちらの記事もご覧ください
.
![]() |
![]() |
![]() |
| Dove of Peace by Sunlay Design |
Catholic Church by DOS Architects |
Dezeen's top ten: churches |













コメントする