
プロダクトデザインコンサルタントのThereforeのために、1970年代の5階建ての建物の1階にあるエントランス、待ち合いスペース、会議室及び共同キッチンを統合するように設計された。

3枚の木製スクリーンの会議室側には雑音防止のための横棒が取りつけられている。

写真撮影:ピーター・クック(Peter Cook)氏
模型撮影:リチャード・デイビス(Richard Davies)氏

West Architecture建築事務所からの説明は以下の通り。
このプロジェクトはクライアントであるThereforeのオフィスの改装です。Thereforeはプロダクトデザインコンサルタントでロンドンのフィツロビアに拠点を置き、1970年代の5階建てのビルで業務を行なっています。このコンサルタントのクライアントにはトム・トム(Tom Tom)、サムソナイト(Samsonite)、NAIMやオレンジ&BT(Orange and BT)などがいます。

West Architectureは、従業員用の設備を充実させ、通りに対しての会社の存在感を改善する一方、会議室、休憩スペース、エントランス空間を再構成することを依頼されました。

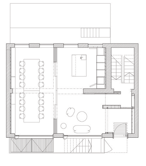
以前は来客は訪ねてきた際に、どこへ向かったら良いか、またはどこで待ったら良いか明確な表示のない小さなロビーに入るような状態でした。1階には小さな会議室、いくつものドアとロビーを通って建物のその他の空間から離れた待ち合いスペースがあり、また全てのオフィスフロアで働く人たちは地下の共同スペースのない小さなキッチンを利用していました。この会社の様々な要素の間に存在する分離的な感覚を改善するためにこの全ての居室が統合されました。

要望に対するWest Architectureの対応策は1階から非構造的なもの全てを取り去り、理路整然とした空間の中に高度なディテールを持つ要素の数々を投入するというものでした。プロダクトデザイナーそしてモノをデザインする人としてのクライアントの役割に影響を受け、理解しやすいオブジェクトによって明確に定義された一連の空間を作ることを目指しました。

場合によってはそれらのオブジェクトの物理的操作が即時的な環境を適合させたり変更したりします。

1階は4つに分かれた部屋として扱われていたものが1つの大規模な空間となり、必要に応じてそれらの部屋は機能的にも物理的にも分けたりつなげたりできます。会議やプレゼンテーションのために設備を備えると同様に1階部分は今では会社の交流の場として機能します。

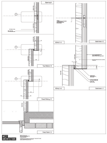
建物のその他の部分全体にあるやや小さめの二次的な部屋は、改善および適応するように改善されました。通りに面したソリッドな通気窓のついたアルミ製継手にはめられた新しいガラス開口部は既存の建物の元々あった特徴を真似たものです。

主要空間は3枚の木製エレメントで分節され、そのうちの2枚は会議室を遮断し、1枚は防火扉を隠し、火災の際にはロビーとなります。

このスクリーンは全て40mm厚に「三重」にされたオーク材のベニヤでできており、West Architectureのデザインに対するクライアントのワークショップチームによる主な契約外で制作されました。スライド式スクリーンは互いに下部のレール不要な固定端のパネルに戻って支持されています。

安定性はまたこれらスクリーンの重心の正確な中心で吊ることによって強化されています。主な会議室の内部ではスクリーンは音響を改善するために押縁が施されています。

大きなステンレススチールのアイランド型キッチンは第四のオブジェクトとして解釈され、即興のミーティングや集まりを助長するために特大にしつらえられました。以前は地下のキッチンであった空間は今では仕事に戻る多くのスタッフが使えるようなシャワールームになっています。
クリックしてイメージ拡大
床下暖房の下に電気を取り込めるようにエポキシ素材の均しの上にフロア全体に樹脂を注入してあります。

便所は背部を深紅に塗装したガラスとラッカー仕上げのMDFパネルおよび高品質な建具の組み合わせで改装されています。
See also:
.
![]() |
![]() |
![]() |
| W1 House by West Architecture |
Join by BCXSY |
More interiors stories |





コメントする