
Mintという名前の築35年の、鉄骨建築はオープン・プラン形式の住宅に変わりました。

天井の構造をオープンにすることにより高さが出て、スペースがより広がります。

スライド式のドアが寝室と他の空間を区切ります。

スペースの側面にある木の食器棚と床の細長い切れではインテリアの多くを占めている白とのコントラストを与えています。

デザイナーからの情報は以下の通りです:
これは築35年の住宅を改築するものです。この住宅は一階建てです。構造は軽量鉄骨です。

所有者は私たちに家族構造が変わったために不要となった仕切りの壁を取り除き、大きな部屋を作ることを望みました。

私たちは天井のトラスを剥き出しにして、仕切りの壁を取り除き、広いスペースを確保しました。

この空間を仕上げるものは昔のレイアウトにより変わりました。

しかし、構造や窓のどちらも変えませんでした。理由は所有者と新しい空間の過去と結びつけようとしたからです。

窓からの太陽光と照明の光が境界線を目立たなくします。このことで時間のつながりと空間のつながりを助けます。

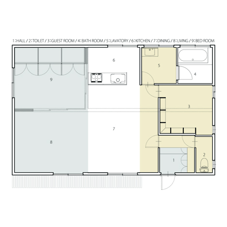
化粧室と洗面所、風呂場と玄関ホールには壁があります。他のスペースはつながっていますが寝室は引き戸で仕切られています。

上記:改築前の図面
プロジェクト名:mint
建築士:epitaph(堀池直希、淺沼伯尚)
使用:個人住宅
面積:77平方メートル
所在地:日本国、岩手県

Above: plan after renovation
上部:改築後の図面
See also:
こちらもご覧ください:
.
![]() |
![]() |
![]() |
| AZB by Geneto |
Fiat Lux by Label Architecture |
More interior stories on Dezeen |
翻訳/NPO法人ハートフル・ジャパン 小川美紀
Dezeen記事(オリジナル)はこちら





コメントする