

「キリのキョリのイエ」と呼ばれるこのプロジェクトはオープンプランの空間内にプライバシーを確保するために金属製のスクリーンを組み込んでいる。

それぞれのパンチングメタルスクリーンは異なるパターンをしており、お互いに重なり合うように配列されている。

この重なり合いが見る人の角度によって絶えず変化する模様を作り出し、スクリーンの背後にあるいかなる存在も歪んで見える。

建築事務所からの詳しい情報は以下の通り。
「キリのキョリのイエ」という名のこの住宅は、東京郊外に建っています。

敷地は周辺に7戸の一戸建て住宅のある袋小路に位置します。

袋小路はたいてい日本ではそこに住む住民たちの共有空間として使われます。特にこどもたちの遊び場や集う場所として利用されます。

しかし残念ながら、日本の多くの郊外型住宅は通りから断絶される傾向にあります。

この分譲地ももちろん例外ではありません。

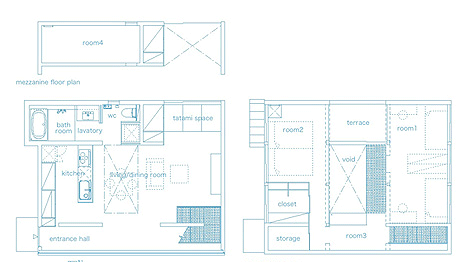
施主は彼らのライフスタイルにあった「空間の広がり」と「オープンプランの間取り」を希望しました。

そのため、明るい印象をもつ住宅を設計しようと思いました。

また部屋の中に明るさを広げ、住宅内の共有スペースも自然光に照らされるようにしたいと思いました。

住宅を通りに向かって開放的にすることに決定したのですが、今度はプライバシーの確保が最大の挑戦となりました。

住宅の道路への近さがそれぞれの空間の分離という問題を引き起こしていることが、明白になりました。

そのため、まるで霧を通してものを見るというコンセプトに基づいて距離の感覚というものを作り出そうとしました。

このコンセプトによって、固定された障壁を設けることなしに視界を遮っています。

イメージにフィルターをかけるというコンセプトを用いることによって、霧を通してモノを見ているような効果を与えながら、多数の層を通して視覚情報のレベルが浸透するように調整しました。

最初に、住宅を敷地の奥の方で計画し、前面になるべく大きい庭を設けるようにしました。

次に仕上げ床高さや壁の配置、また鏡やガラスの反射と関連づけるために視覚情報の高さを調整しました。

さらに、それぞれがユニークなパターンをもつパンチングメタル製のスクーンを非常に特殊な配置で調整して用いることにより、プライベートルームを分離しました。

See also:
.
![]() |
![]() |
![]() |
| Ghost-like Architecture |
Nomiya temporary restaurant by Pascal Grasso | More architecture on Dezeen |




コメントする