
建築家のピーター・ピヒラー(Peter Pichler)氏がイタリアのプーリアに建築した住宅は、14世紀の農家を改装したもので、建物の周囲に穴のあいた雨戸が取り付けられている。

丘の上に建築されたCasa Pugliaと呼ばれるこの住宅は、室内から望むアーチ状の窓に特徴があり、これらの窓に新しく雨戸が取り付けられた。

これらの雨戸にはウォータージェット切断加工のアルミ製パネルを使用し、アラビアデザインを取り入れたグラデーションの模様に特徴がある。

各部屋のアーチ状の出入り口から外へ出ることができる。

写真:Domingo Milella/Victoria Ebner

Dezeenの住宅関連記事はこちら
建築家からの詳細は以下の通りである。
サンタ・マリア・アル・バグノは、レッチェ市ナルド地区の小さな漁村で、ターラント湾沿岸のガルポリとポルトセサレオの中間にあるイオニア西海岸に位置しています。

このプロジェクトの目的は、イタリア南部のプーリアにある14世紀に建てられた農家を改築することです。この住宅は、プーリアの農村部に見られる「マッセリア」という伝統的な農家の一部で、通常地元産の「トゥーフォ」という砂岩を用いて建築されています。

この500年の間、「マッセリア」はプーリア地方の農業経済を支える中心として、そこで働く人々と共に小麦・アーモンド・ワイン・オリーブ油・牛乳・チーズを生産してきました。

第二次世界大戦後、大部分の人々は都会に移住し、「マッセリア」は荒廃したままになっていました。ここ5,6年の間に、「マッセリア」はホテルや美術館、さらに個人の住宅として、再び日の目を見ることになりました。

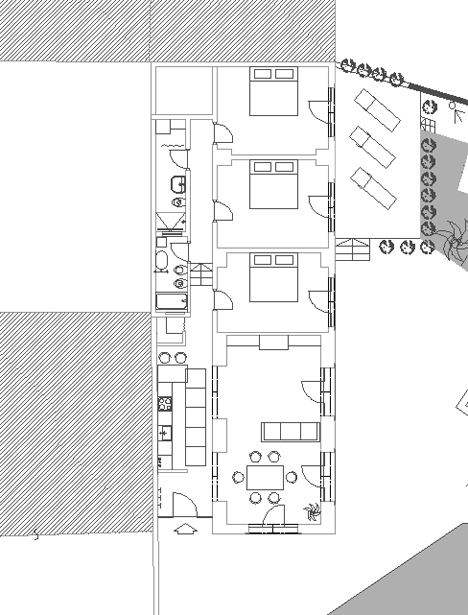
海に面した小さな丘の上にあるこの住宅には、居間続きの小さな台所の他に、3つの寝室と浴室が2つあります。地中海固有の植物に覆われた周囲の庭は、東側に向かって広がっています。

この古い農家の最も大きな特徴は、室内の幅を一杯に使ったアーチ形のデザインで、外壁(古い壁は場所によって80センチメートルの厚みがある)に向かって彫り込まれていました。

このプロジェクトの構想は、「室内装飾」としてのアーチ形をくり抜いて外壁に開口部を造り、窓や庭に通じるドアとして改築することでした。

11世紀から13世紀の代表的なプーリア建築は、ギリシャ・アラビア・ノルマンの影響を受けています。

これらの影響をヒントにして生まれた模様が、日光を遮ると同時に防犯面でも威力を発揮する36mmのウォータージェット切断加工を施したアルミ製パネルにデザインされています。

構造物の密度を測定するパラメトリック工法によって生まれたこの模様は、室内に差し込む光を調節する役目を果たします。

密度の薄い明るい部分から濃い暗い部分へと次第に変化していく模様は、伝統的なアラビアの「直線」模様を現代風に作り変えたイメージです。

昼と夜では全く異なる光と影の戯れが一日を通して常に建物に映し出され、建物の外観を引き立てます。

プロジェクト名:Casa in Puglia
種別:別荘

所在地:イタリア プーリア サンタ・マリア・アル・バグノ
建築状況:完成
投稿/キャサリン・ウォーマン
翻訳/ハートフル・ジャパン 鳴海 亨
Dezeen記事(オリジナル)はこちら。

こちらの記事もご覧ください。
.
![]() |
![]() |
![]() |
| House for a photographer by Peter Pichler | Ladderstile House by ThreefoldArchitects | Restello by Piercy Conner Architects |





コメントする