
アルゼンチンの建築事務所アダモ・フェイデン Adamo-Faidenは、ブエノスアイレスにある改築したアパートの屋根にテントのような覆いを設置した。

Núñez Houseと呼ばれるテント状の構造物は、建物の屋上を覆うように両側の壁に設置され、テラスやプールの日よけになる。

これによって屋上に風通しの良い明るい空間が生まれた住宅の内部は、台所・居間・食堂が全てテラスとガラスの壁で仕切られている。

アパートをほぼ全体にわたり改築した住宅は、寝室が一つの階にまとめられ、屋上に古い貯水槽を改造したプールが完成した。


アダモ・ファイデンのプロジェクト関連記事はこちら。

住宅の改築関連の記事はこちら。

建築家からの詳細は以下の通りである。
Núñez House
Núñez一家用に完成した住宅は、古いアパートを現代風の都会的な住宅に改築したものです。

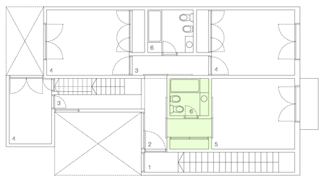
既存の建物に新たな機能を組み入れるために、このプロジェクトでは4つの重要な改築が施行されます。

最初の改築は、建物の一階と二階の間取りを変えることです。

かつて居間があった場所に浴室と収納スペースを設置することで、2階を全て寝室にすることが可能になります。

これによって、その上の階とテラスを家族全員が集うための機能的な共有スペースとして使用することができます。

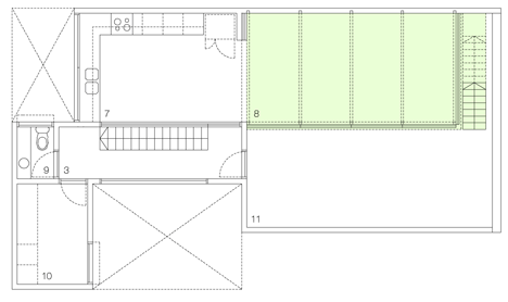
次にテラスの半分利用して、台所・食堂・居間を一か所に収容できる明るいスペースを増築します。

さらに、このスペースの屋上にある貯水槽を改造して、屋外プールを設置します。

最後の仕上げとして、周囲の建物の不規則に並ぶ壁を利用してテント状の覆いを張り、新しい住宅に相応しい開放感と機能性を備えた空間を構築します。


大きな画像はここをクリック
大きな画像はここをクリック
大きな画像はここをクリック
投稿/キャサリン・ウォーマン
翻訳/ハートフル・ジャパン 鳴海 亨
Dezeen記事(オリジナル)はこちら。
こちらの記事もご覧ください。
.
![]() |
![]() |
![]() |
| House in Kodaira by Suppose Design Office |
Origami by Architects Collective |
Casas Lago by Adamo-Faiden |







コメントする